About
Professional
Academic
CV
Contact
About
Professional
Academic
CV
Contact
SERDAR VARDAR

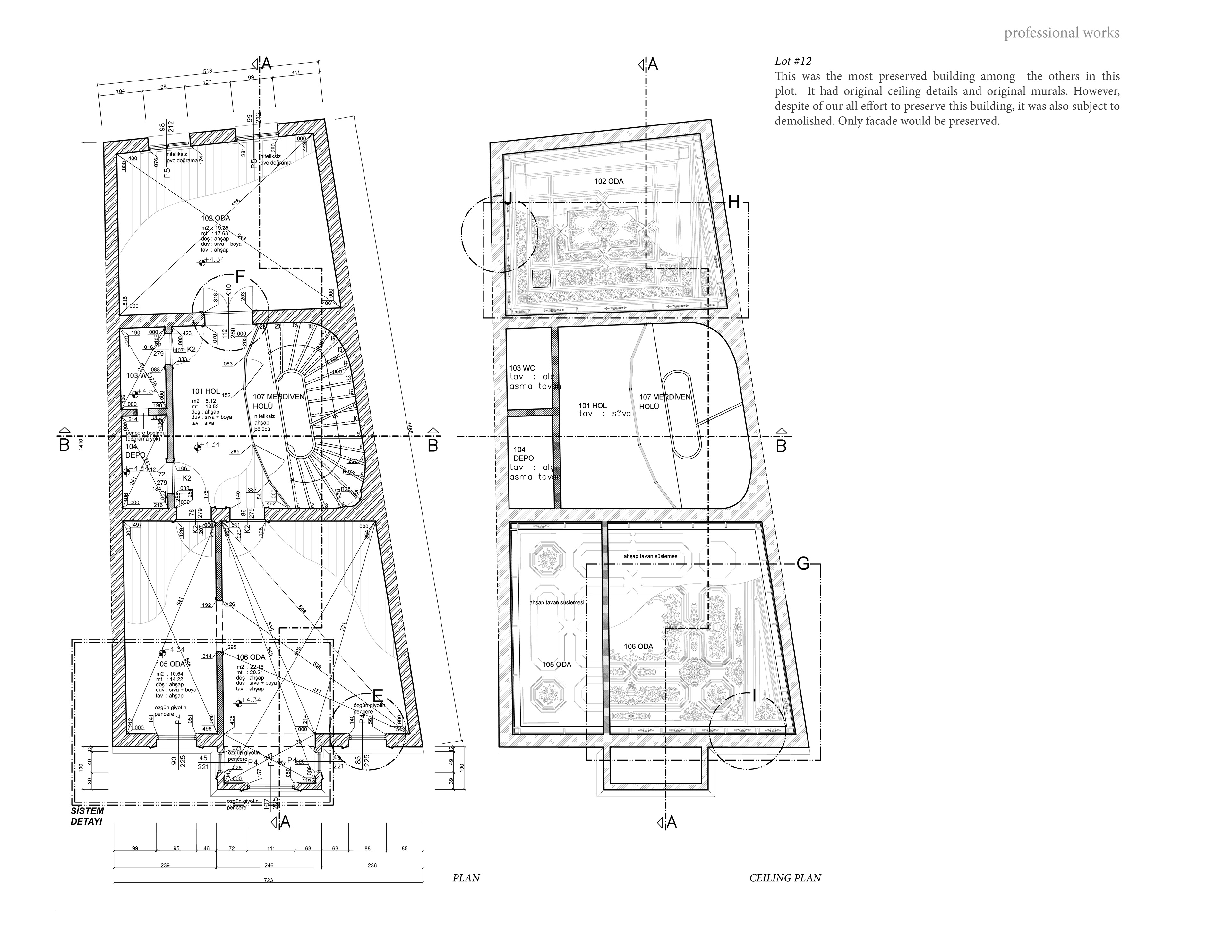
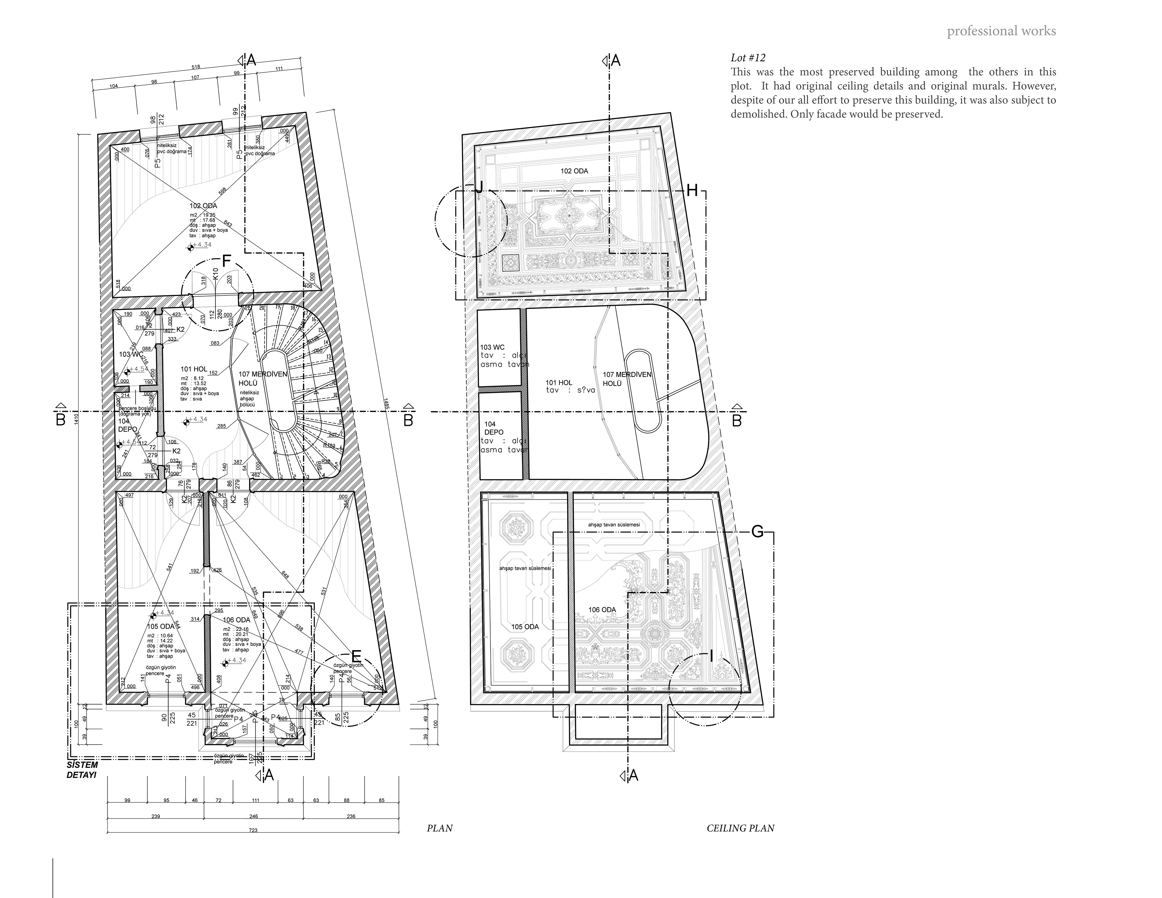
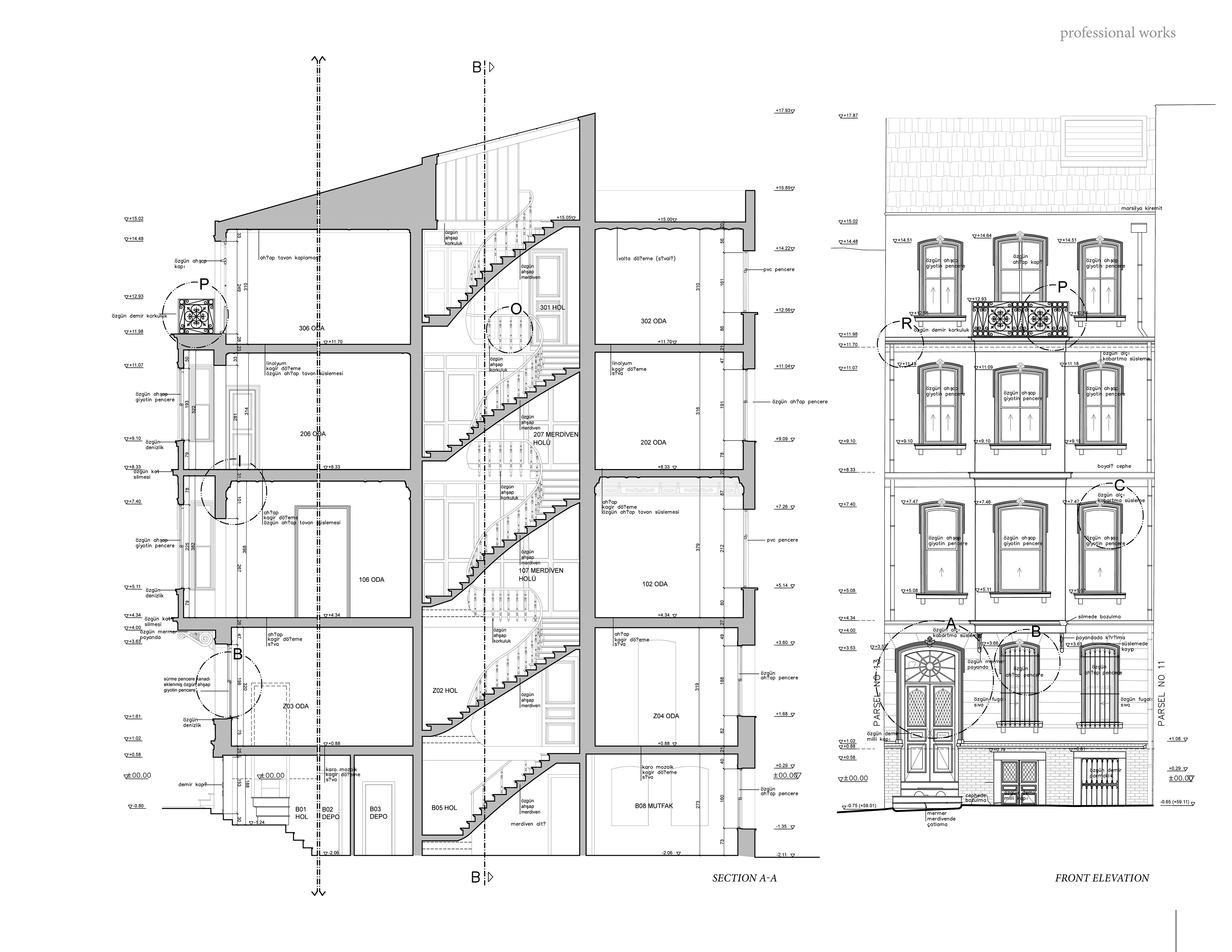
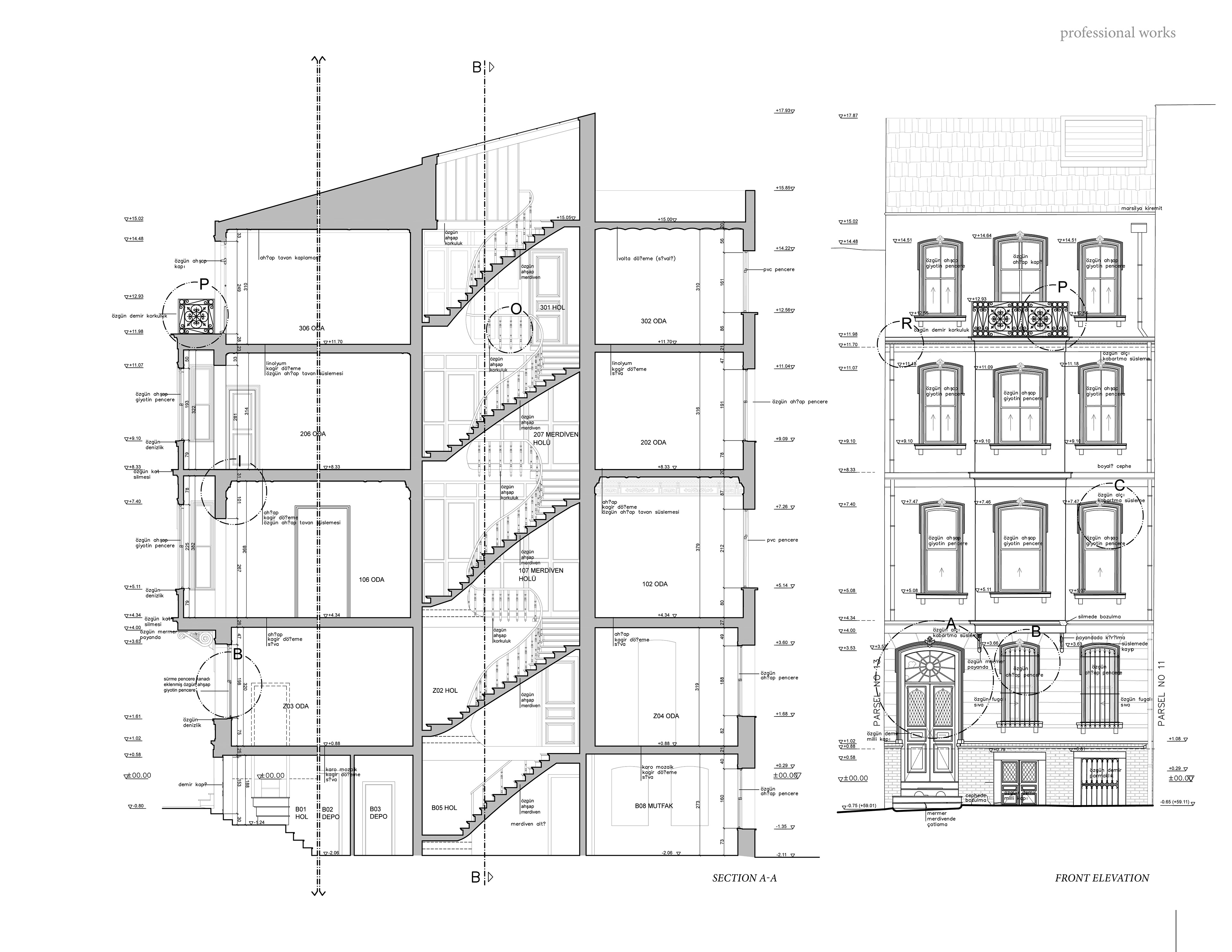
Tarlabasi 360

Back to Professional Work
Erginoğlu & Çalışlar Architects

You may also like

Residence Four
2006
Chalet Podima
2015
TBF CAMP
2010
O Mall
2008
Town House 51
2011
Galata Residence
2010
↑Back to Top
Powered by Adobe Portfolio