About
Professional
Academic
CV
Contact
About
Professional
Academic
CV
Contact
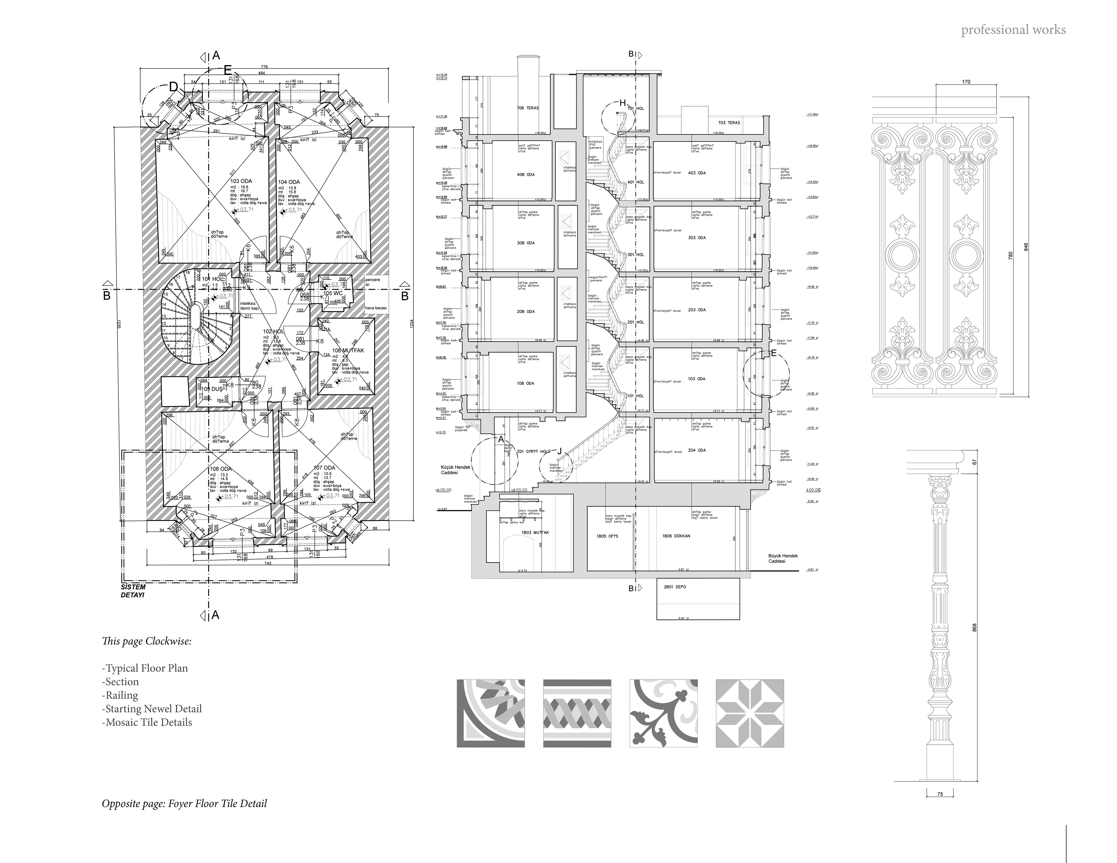
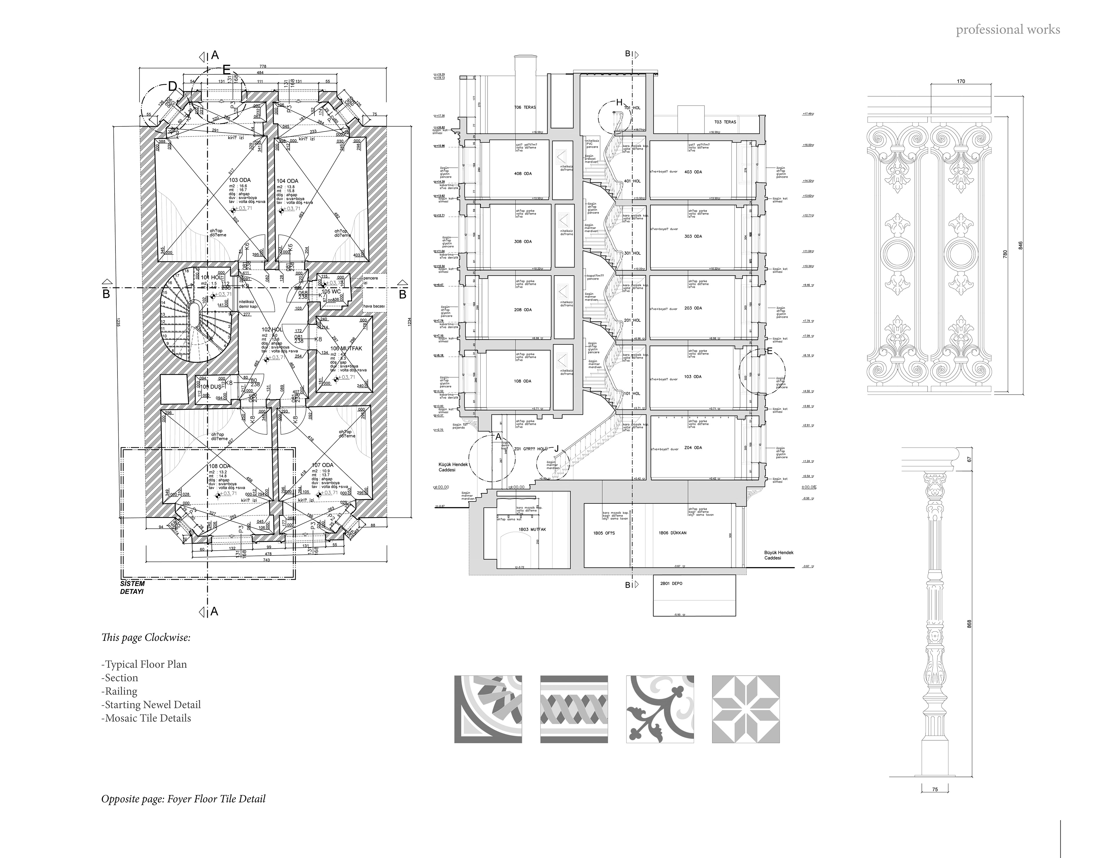
SERDAR VARDAR

Galata Residence

Back to Professional Work
Erginoğlu & Çalışlar Architects

You may also like

O Mall
2008
Residence Four
2006
Chalet Podima
2015
Town House 51
2011
TBF CAMP
2010
Tarlabasi 360
2010
↑Back to Top
Powered by Adobe Portfolio