About
Professional
Academic
CV
Contact
About
Professional
Academic
CV
Contact
SERDAR VARDAR

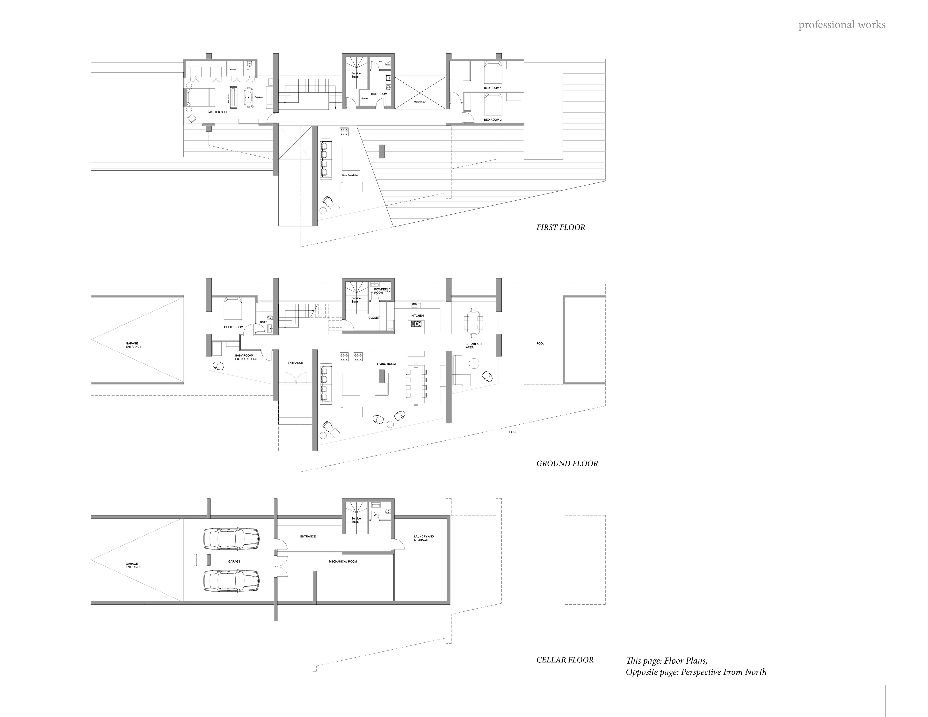
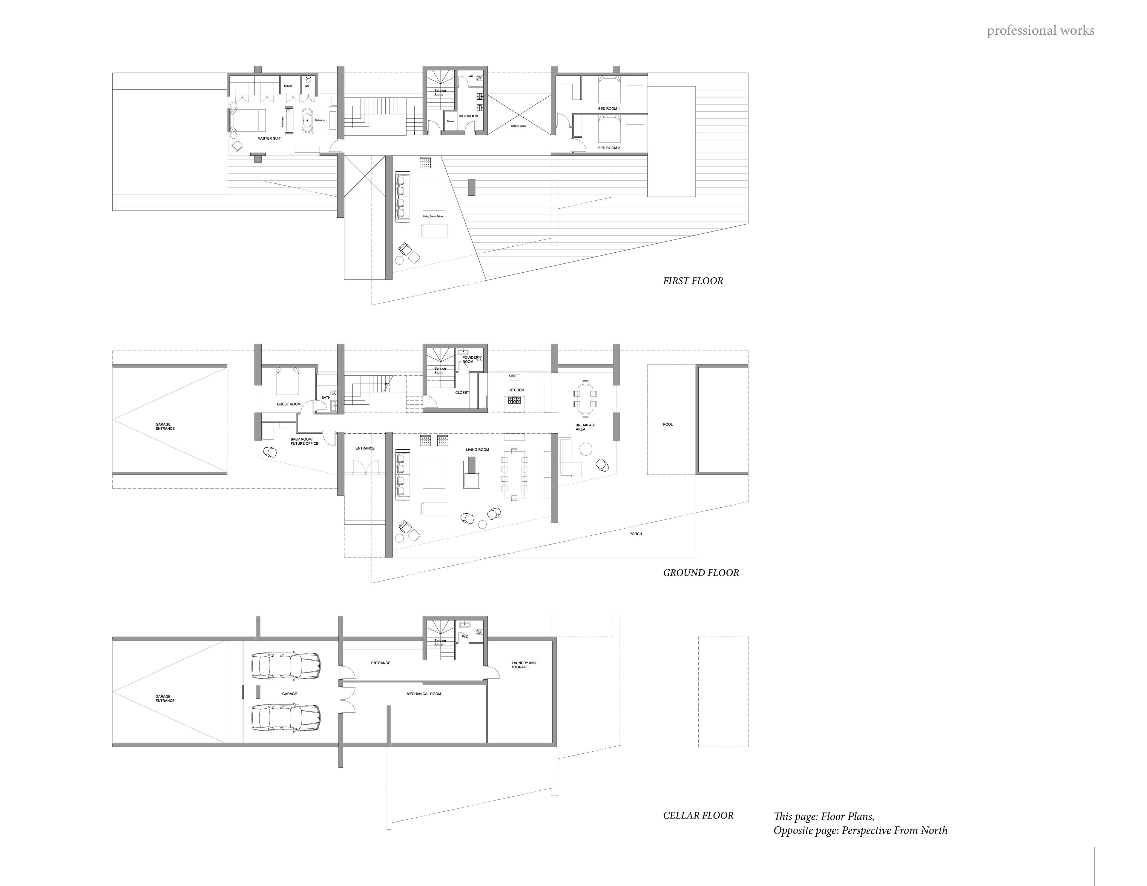
Chalet Podima

Back to Professional Work

You may also like

Galata Residence
2010
O Mall
2008
Town House 51
2011
TBF CAMP
2010
Tarlabasi 360
2010
Residence Four
2006
↑Back to Top
Powered by Adobe Portfolio