About
Professional
Academic
CV
Contact
About
Professional
Academic
CV
Contact
SERDAR VARDAR

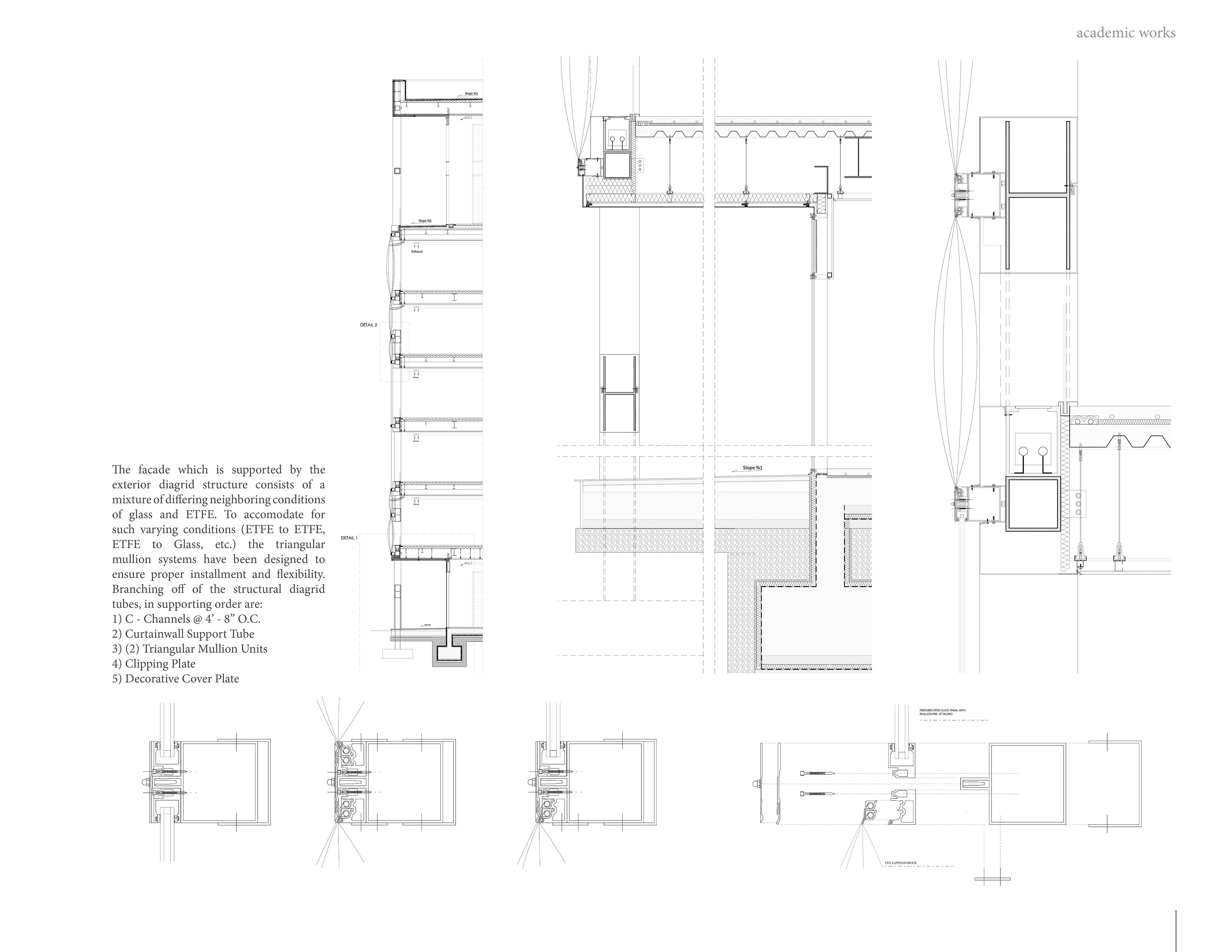
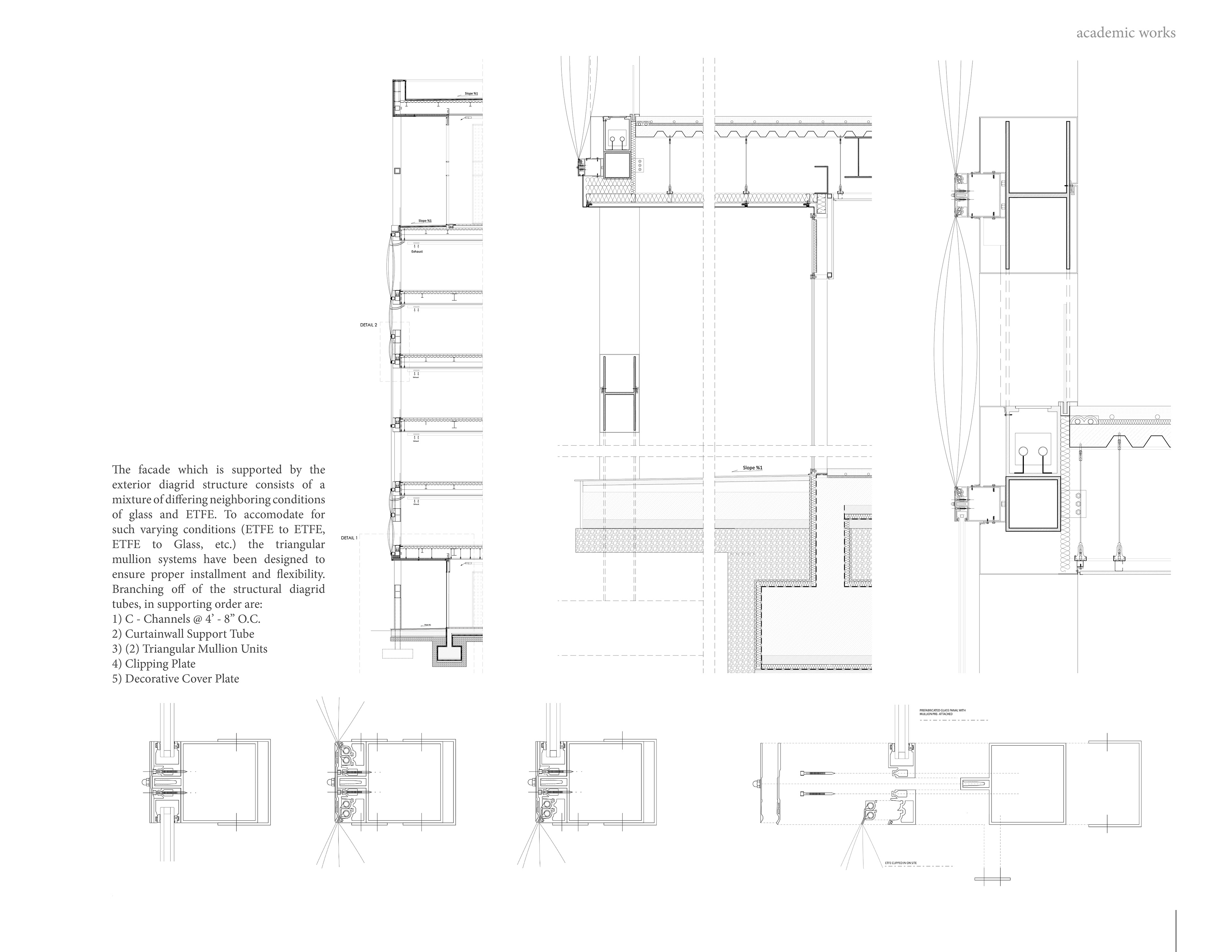
ETFE

You may also like

Sight Lines/Site Lines
2014
Display / Delay
2014
All Fashionable Paris
2014
Sphere
2007
Curved Sky
2004
Space Of Dome
2010
Amorphous Art
2007
Spatial Voyage
2019
Burr House
2014
Fabrication&Function
2014
↑Back to Top
Powered by Adobe Portfolio